【背景与需求】
钢铁业板材产线生产的镀锌钢卷,其中一道工序是钢板从锌锅中穿过镀锌,液态锌锅内的高温锌液会产生氧化产生锌渣,锌渣会影响镀锌钢板表面质量,锌液面波动也会对钢板表面质量产生影响,因此需要人工捞出锌渣。由于锌比重大,在锌锅边上人工捞渣既辛苦也危险还是有毒有害作业,捞渣不稳定性也容易影响产品质量。首自信公司自主研发的自动捞锌渣机器人,有效解决了上述问题。
【产品介绍】
产品简介:
首自信公司自主研发的自动捞锌渣机器人,是将机器人、机械、控制、智能传感和网络通讯等技术充分融合,形成的一套应用于镀锌机组锌锅捞渣工作岗位的智能设备。该设备能够通过位置检测来优化路径,提高捞渣量;将捞渣作业对锌锅液面造成的扰动最小化,从而提高镀锌钢板的表面质量;解决捞渣频率不固定、捞渣标准不统一等问题,减少锌耗。整个流程紧凑,捞渣效率高。该产品由传统标准件和自研件构成,标准件如工业机器人本体和PLC控制器等,自研件是完场专项任务的灵魂,其中核心部件如下:
机器人带动捞渣勺:在锌锅内完成撇锌渣、捞锌渣等动作,动作对锌层液面影响小,避免对镀锌钢卷表面质量影响,捞渣勺材质和结构设计是核心。
工具快换:锌勺等捞渣工具实现自动快换。
液面监视:渣斗液面也有监测,按需将锌渣斗运出。
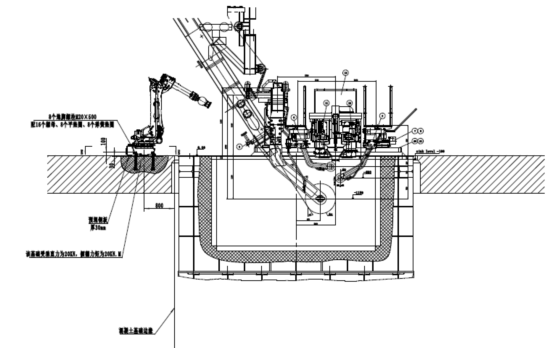
产品架构:

镀锌捞渣模型图

系统架构图
产品效果:
捞渣覆盖范围≥85%,有效作业率≥99.8%;
对锌锅液位影响≤±1mm;
解决了人工捞渣工作环境恶劣、操作不规范导致液面波动等捞渣过程存在
的安全隐患问题;
提高了捞渣效率和锌锅液面控制精度;
降低了锌耗,有效节约了成本。
【产品主要功能】
自动捞锌渣机器人可以完成带钢镀锌捞渣工序自动捞渣,替换3D岗位,较少对锌锅液面造成的扰动,保证镀锌板表面质量,通过下面的技术与措施,保证了产品的各项功能。
最优捞渣:应用机器视觉技术,自动对锌锅浮渣分布进行检测,结合深度学习技术,自动生成并优化捞渣路径,实现最优捞渣效果。
前端工具表面处理增加寿命并减少捞渣对锌锅的扰动,采用特定材质和处理工艺,自主研发的捞渣工具,捞渣效率高且不易粘锌渣。
设备稳定,保证生产稳定:使用最高防护等级的工业六轴机器人,保证了柔性化及高可靠性,维护量低。采用热防护材料,保证设备耐高温辐射。




【应用案例】
(1)首钢京唐钢铁联合有限责任公司1-4#镀锌线 安装了4套镀锌捞渣机器人,在锌锅高温环境下稳定工作了3年多了,大大减少了3D岗位,快换工具可以在捞渣与撇渣间快速自动切换,提高了效率,视觉渣斗液面控制有效减少了换斗频率。
(2)首钢顺义冷轧薄板有限公司镀锌线2016年安装了2套基础版捞渣设备,按照预配程序固定路径捞渣,工作近9年稳定运行。
(3)本钢冷轧安装了1套基础版捞渣设备,按照预配程序固定路径捞渣,工作近4年稳定运行。


京公网安备11010702002721